This very engaging hillside townhome is located at 36 Clarewood Lane in the Clarewood Subdivision of Oakland's Montclair district. Surrounded by tall trees and pleasant hillside trails, it offers a Tahoe like atmosphere just moments from Montclair Village, and nearby Berkeley and Oakland.
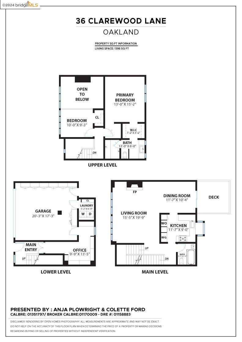
It features 2 bedrooms and 2 bathrooms in a comfortable 1396 sf of living space.

Three stunning, and 10 foot floor to ceiling windows combine with a set of four horizontal windows to capture the restful view of the exterior greenery and trees immediately adjacent to the living room.
The living room itself is large, and is softly color coordinated with the hardwood floors and the subtle off white walls. It is anchored by a pleasant fireplace that is especially welcoming on cooler Bay area evenings.

An additional view of the home's wall of living room windows reveals yet again the serenity of the home in its hillside setting.

A wider perspective of the home reveals the home's dining room which is just steps away, and easily accessed for entertaining.

Another perspective of the dining room shows its size-easily accommodating a large table, six chairs, and a corner server.
Especially worth noting is the stunning chandelier overhead.
If desired, a sliding glass door to the right opens to allow access to the patio for guests-especially ideal with a buffet or luncheon format when movement indoors and outdoors is likely.

The sliding glass door that open to the porch is seen here, and it's location is especially ideal for parties and special events.

Yet another view of the dining room reveals its buffet server and, just steps away, the home's impressive kitchen. A better view of the home's private patio can be seen through the glass doors.

This thoughtfully crafted and well designed kitchen is a chef's delight. Food preparation is enhanced with the carefully placed updated appliances, and, just steps away, custom cabinetry provides ideal storage for favorite cooking tools, pots and pans, and serving pieces at virtually every level for immediate access.

Gleaming appliances and stone counters throughout reveal the effort invested in updating the space.

Also on the main floor is this gleaming updated bathroom with enclosed bathtub and shower and a high ceiling.

A gleaming set of stairs leads upstairs to the second floor, as is seen here. This space is defined as a small loft bedroom, and could also accommodate an office, study, or playroom, to suggest a few of the options available for its use.
An impressive overhead chandelier at the top of the stairs adds yet more appeal and additional lighting to the space.

Directly across the hall from the loft bedroom on the second floor is this expansive primary bedroom. Warmly lit and inviting, it has very generous floorspace that allows the placement of a large bed, twin nightstands, a desk and chair with room left over for additional pieces- perhaps another soft sided chair or a sofa, as desired.

A reverse view of the primary bedroom illustrates two especially desirable features for one's comfort, as seen below.

The first, seen here, is a floor to ceiling storage closet with generous amounts of storage and hanging space for one's clothing and shoes.


Passing further forward, one reaches this luminous and updated primary bathroom that adds more vision to an already dramatic ambiance.

As mentioned above, this townhome is part of the Clarewood Subdivision in the Oakland hills, and, as part of that complex, has a large pool that is set among the trees for one's enjoyment.

Additionally, surrounding the property are well kept trails that meander around the homes, that are perfect for a lazy walk on a lovely day.

The front of the home, seen here, shows the external appeal that has been created by the imaginative window placement. A view of the two car garage is also available.
I would encourage you to call me promptly regarding this property. I can be reached at (510) 517-6280. It is being offered for sale for $895.00.
(Listing Courtesy of Anja Plowright of The Grubb Company)

Posted by Bruce Wagg on
Enjoy this blog post? Click here to subscribe for updates


Leave A Comment